Harvey Rice Heritage: Affordable Housing for Communities of Color
Neighborhood Housing
In the News
News story published on Wednesday, November 11th, 2020 by Sarah Hansell, Street Roots
Click here to view article online
Press Release
Press release issued on Friday, August 14th, 2020 by Sabin CDC
Click here to download PDF format (1 page)
Project Spirit by S|EA Architecture Firm
Summary
Infill development on two scattered sites owned by Sabin CDC in NE Portland.
Existing affordable housing to be replaced with greater density.
PROJECT SPIRIT: HOME – HEART – HERITAGE
The Harvey Rice Heritage seeks to honor Sabin CDC’s current Board Chair. Through activism and civic engagement, Mr. Harvey is a community leader whose work has touched so many throughout Greater Portland. Whether through his work at Tri-Met, Portland State, the AARP, his church, or the African American Chamber of Commerce, Mr. Harvey’s voice can be heard as an advocate for the strengthening of community ties, for an understanding of human frailty, and for reaching a hand across the table to shake someone’s hand.
Sabin CDC’s Board Chair since 2013, Mr. Harvey has guided Sabin CDC from a struggling organization to a thriving one that is looking to expand its future opportunities to serve the African American population of Inner N/NE Portland. Sabin CDC seeks to honor Mr. Harvey’s legacy of civic participation and advocacy with permanent structures that will provide shelter and opportunity for those we serve.
(Sabin CDC Program Committee of the Board)

At the request of the Executive Director Mary Schoen-Clark, Mr. Bobby Fouther, a local community artist, assisted in the naming of the buildings, art history and the development of community art spaces. Mr. Bobby’s heritage goal is bringing communities together through the arts and he also participated in the neighborhood meetings to introduce the buildings to community members.
These homes will be built and named for 2 local community art icons Isaka Shamsud-Din and Charlotte Lewis, who worked in NE Portland and wove their African-American heritage with their art as a means of strengthening the voice of their community.
Isaka Shamsud-Din

Charlotte Lewis

These artists each worked in unique media, and they often collaborated together to produce murals, paintings and textiles. This has created a permanent history of a community that has been disbanded by the forces of gentrification. These new apartment buildings honor Shamsud-Din and Lewis and embody Sabin CDC’s commitment to honoring and preserving NE Portland’s African American communities by expanding housing opportunities.
Families are drawn to Sabin CDC’s history of housing long-time and returning neighborhood residents who might otherwise be displaced by the gentrification of NE Portland. By reintroducing NE Portland to these important artists and their work, Sabin seeks not only to create affordable housing opportunities, but to hear the voice and history of the local minority community.
To achieve this goal. Sabin sought out a State grant to fund Hands Across the Table (HATT). HATT was envisioned to convene leaders in the black and minority communities with two goals: 1. to speak to the vision of housing design in the future, and 2. provide the elements needed to strengthen the community connection within NE Portland and within the new communities of Harvey Rice Heritage, which is made up of Isaka Shamsud-Din and Charlotte Lewis.
As stewards of affordable housing, Sabin CDC strives to preserve economic and racial diversity in neighborhoods where housing costs have increased exponentially since 1990, while incomes have become more polarized. Our resident demographics mimic the overall neighborhood composition in 1990: incomes average 20-50% of median, resident age is above median, 27% of our residents identify as disabled, and 76% of our residents identify as African American or Multi-Racial. Because of our relatively small scale, Sabin CDC is an approachable nonprofit organization where word-of-mouth has provided a pathway for people of color to affordable housing in Inner N/NE Portland.
About Sabin CDC
The neighborhoods that Sabin CDC serves are in the heart of Portland’s historic, vibrant African-American community; one that over time was redlined and suffered from disinvestment. When Sabin began in 1991, its role was to be a revitalizer by investing in the renovation of abandoned buildings. Now, its role is that of a preservationist to ensure that a diversity of residents can remain in their neighborhoods. Stable housing is a first step to economic and social stability. Sabin CDC’s role as a provider of affordable housing is one way to dismantle barriers and improve community conditions that place people first and bring people home.
Acknowledgements
Because affordable housing is not a solo endeavor, Sabin CDC would like to acknowledge support from our many partners including but not limited to: Housing Development Center (HDC), Impact Capital, Heritage Bank, S|EA LLC Architects, P&C Construction, Peregrine Relocations, National Equity Fund, Network for Oregon Affordable Housing (NOAH), Oregon Housing and Community Services (OHCS) (Low Income Housing Tax Credits 9% (LIHTC), General Housing Assistance Program, Oregon Affordable Housing Tax Credits, METRO, and the Oregon Multifamily Energy Program), Living Cully, BES’s Portland Brownfield Program, and the Office of Commissioner Amanda Fritz. The planning for the Harvey Rice Heritage took form with support from Meyer Memorial Trust.
The Development Partners
Sabin CDC (www.sabincdc.us) currently owns and manages 120+ units of affordable housing in NE Portland; currently, 70% of our residents identify as African American. Founded in 1991.
Iron Tribe Network (www.irontribenetwork.org) has 10+ years of experience housing and supporting previously incarcerated individuals, a population that is disproportionately African-American and at high risk of homelessness and recidivism complicated by high rates of mental health, addiction and trauma challenges. Founded in 2009.
Community Vision (www.cvision.org) is Oregon’s largest provider of individualizes support for people with disabilities, including developmental disabilities. Founded in 1993.

Photo: Sabin CDC Board Members
Sabin CDC also wishes to acknowledge the support of the Sabin CDC Board of Directors: Mr. Harvey Rice, Brad Hippert, Jillian Saurage-Felton, Samuel Cole, Robyn Harris, Doris Stevenson and Justin Reeves Meyer and several Sabin CDC staff: Mary Schoen-Clark, Executive Director; Dr. Loulie Brown, Housing Director; Abel Johnson, Director of Property Management; and Darleen Solomon-Rogers, Resident Services Director; along with Sabin CDC Consultant: Laura Rose MPA NFPM for their steadfast commitment and contributions to the mission of Sabin CDC and to this effort.

MAP
(Sites A & B marked)

UNIT CONFIGURATION
(Sites A & B)

A. Isaka Shamsud-Din:
5421 NE 14th Place
Featuring (6) Studio, (12) One-Bedroom, and
(11) Two-Bedroom Units
for a total of 29 Dwelling Units
ISAKA SHAMSUD-DIN COMMUNITY ROOM & GALLERY


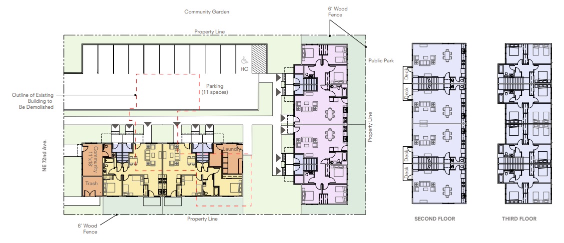
B. Charlotte Lewis:
5740 NE 72nd Avenue
Featuring (2) Two-Bedroom, and (10) Three-Bedroom Units
for total of 12 Dwelling Units
plus the
CHARLOTTE LEWIS OUTDOOR COMMUNITY CLASSROOM

C. Combined Total between Sites A & B:
(6) Studio, (12) One-Bedroom,
(13) Two-Bedroom and (10) Three-Bedroom Units
for a Grand Total of 41 Dwelling Units
INTERIOR DETAILS
Download HRH Interior Details (PDF Format, 10 pages)










ARTIST DETAILS
COMMUNITY SPACES & GALLERIES
1,400 sf Indoor Community Room Space
1,100 sf Outdoor Education Space
TIMELINE EVENTS
Click to Visit the Construction Photo Gallery
Click to Visit the Cully Event Photo Gallery
Grand Opening in Winter of 2022
PAST NEIGHBORHOOD OUTREACH EVENTS
SABIN CDC held the
Sadie’s Cully Community Celebration honoring Charlotte Lewis
Sunday, October 23rd from 1-4pm pst
- Stunning live performance with Blacque Butterfly and Friends supported by Vibrant Spaces.
- Sneak peek inside units at Charlotte Lewis before the building is finished and families move in!
- Sabin’s Sadie the Housing Hippo joined us to greet the little and big kids alike.
- Iron Tribe Network served up hot hamburgers with the fixings
- Heritage Bank provided Cookies, Drinks and Chips!
We celebrated at our family event with music, food and community!
PHOTO GALLERY
Coming Soon
Click to download the Event Flyer for the Sabin CDC Cully Celebration (English)
(PDF Version, 1 page)
In 2021 people were invited to come hear about Sabin CDC‘s plans to build the Charlotte Lewis and Isaka Shamsud-Din apartments at a special neighborhood meeting.
Sabin CDC presented plans and answered questions about the new affordable housing project.
Sabin CDC / Harvey Rice Heritage (HRH)
Neighborhood Outreach Event for
Charlotte Lewis Development
Tuesday, March 9, 2021 @ 7:00 PM (PT) online via Zoom:
Sabin CDC / Harvey Rice Heritage (HRH)
Neighborhood Outreach Event for
Isaka Shamsud-Din Development
Wednesday, March 17, 2021 @ 7:00 PM (PT) online via Zoom:

